
MADANG
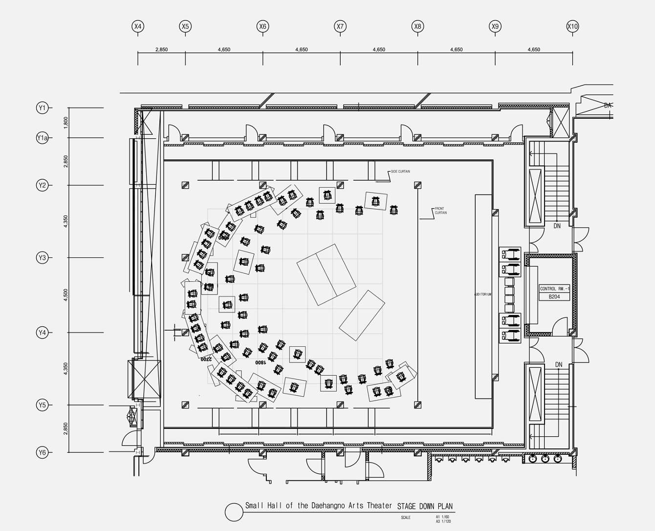
Studio jaSeo designed the stage for the album showcase of ‘GAYAGEUM‘ artist Park Kyung So. We tried to create a stage that would complement the traditional Korean zither like ‘GAYAGEUM’, to create the a setting that would encourage communication between performer and audience we choose to apply the form of Korean traditional outdoor performance (MADANGNORI).
We decided to use pre existing stairs to place over 60 chairs and surround A player seated in the middle of the lowest level. Compare to traditional performance set up artist was surrounded-by viewers but viewers were surrounded by other viewers as well this created the very specific feeling of companionship. We created not only a performance stage, but also a stage for communication and creation of new relationships among the audience
Credits
Client / 플랑크톤 뮤직 (PLANKTON MUSIC)
Concept and Design / Sunghyeop Seo(studio jaSeo) and Sujeong Han
Site / 대학로예술극장
Year / 2015
Photo / © Nah Inu
Client / 플랑크톤 뮤직 (PLANKTON MUSIC)
Concept and Design / Sunghyeop Seo(studio jaSeo) and Sujeong Han
Site / 대학로예술극장
Year / 2015
Photo / © Nah Inu






KR_
스튜디오 G280은 가야금 연주자 박경소의 앨범 쇼 케이스를 위한 무대를 디자인하였다.우리는 가야금이라는 한국 전통 악기가 가진 문법을 무대에 적용하여, 연주자와 관객이 서로 소통하고 공감하는 한국의 마당놀이 형식으로 무대를 꾸몄다.
이 무대를 위해서 우리는 바닥에 연주자를 위한 낮은 단을 설치했고, 기존의 계단식 객석을 없애는 대신 연주자와 같은 레벨의 평면에 연주자를 둘러 싸는 형태로 60여개의 의자를 배치했다.
마당의 수평적 형태의 무대는 기존 극장의 수직적이고 일방적인 형태를 벗어나 객석과 무대의 경계를 허문다. 이것은 연주자와 관객의 관계 뿐만 아니라 관객들 사이에서도 새로운 관계를 만드는 소통의 무대가 된다.
스튜디오 G280은 가야금 연주자 박경소의 앨범 쇼 케이스를 위한 무대를 디자인하였다.우리는 가야금이라는 한국 전통 악기가 가진 문법을 무대에 적용하여, 연주자와 관객이 서로 소통하고 공감하는 한국의 마당놀이 형식으로 무대를 꾸몄다.
이 무대를 위해서 우리는 바닥에 연주자를 위한 낮은 단을 설치했고, 기존의 계단식 객석을 없애는 대신 연주자와 같은 레벨의 평면에 연주자를 둘러 싸는 형태로 60여개의 의자를 배치했다.
마당의 수평적 형태의 무대는 기존 극장의 수직적이고 일방적인 형태를 벗어나 객석과 무대의 경계를 허문다. 이것은 연주자와 관객의 관계 뿐만 아니라 관객들 사이에서도 새로운 관계를 만드는 소통의 무대가 된다.